지원장비
센터가 보유한 장비의 기능과 사양을 한눈에 확인하세요.
보유중
프로펠러 성능 측정 시스템 장비
프로펠러의 회전수, 추력, 토크 등을 정밀 측정하여 공력 성능과 효율을 분석하고, 기체 특성에 맞는 최적의 추력을 발휘할 수 있도록 설계를 검증하는 전용 시험 시스템입니다.
-
장비 상세정보
-
Key Feature
- 시험 분야 : 프로펠러 성능 측정 시험
- UAM에 탑재되는 추진 시스템인 모터-프로펠러 전기 추진장치의 성능 및 내구 시험
- 프로펠러-모터 추력, 진동, 내구, 제어성능 등 통합 시험환경 조성 및 저소음 설계 챔버
-
프로펠러 성능 측정 시스템 장비
-
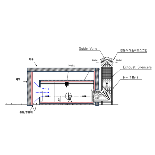
프로펠러 성능 측정 시스템 장비 구조도
-
모터 프로펠러 성능측정 시스템
-
모터 프로펠러 시험설비 개념도 및 해석결과
-
Specification
-
전기추진장치 시험장치
Load Cell ~ 500kg Torque Sensor ~1500 Nm RPM Sensor ~30,000 rpm Accelerometer Sensor 100mV/g, ±500g Propeller ~ 직경 2.5m Configuration 단축(single) & 동축반전 Test Factor 추력, 토크, 회전속도, 진동, 응답성, 내구성 부가 장비 제어/모니터링 시스템, DAQ, 교정지그, 전원공급장치, 테이블 등 -
전기추진장치 시험챔버
Chamber Size 9.5m(W) X 30m(L) X 14m(H) Test Section 9.2m(W) X 18m(L) X 6.7m(H) Noise level ~ 60dB (at Outside) 부가 장비 호이스트, 정반, 실내 흡방음시설 등
-
-










